3 BEDROOM HOME IN NORTH EAST TACOMA
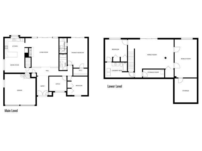
When someone says ‘Check Out That View’ they have this house in mind. Designed to capture sweeping Sound and mountain views from both levels, this bright and airy home features soaring vaulted ceilings with skylights to bring in natural light and an expansive deck for easy entertaining. The main-level primary suite opens to the deck and features a spa-like bath and walk-in closet. The main level also has a living room with a gas fireplace, a sunny kitchen with a view, a dining room, an office, and a bedroom. A roomy lower-level family room opens to a covered patio and fully fenced backyard. Large bonus room, bedroom, full bath, laundry, and storage complete the downstairs. Eligible to join Browns Point Improvement Club for private beach access, clubhouse, and boat launch.
WHAT’S NEARBY
Browns Point is situated on the eastern side of the entrance to Commencement Bay, which leads south from Puget Sound to the busy Port of Tacoma and has a little bit of fun history behind it. In 1887, two years before Washington became a state, a fixed white light lens lantern was placed on a white post on Point Brown. It was about twelve feet above sea level and 50 yards from the low water end of the shore. In 1901 the first lighthouse and a house for the lighthouse keeper were built, which today is known as the Browns Point Lighthouse Park - a popular outdoor spot for locals and provides the community waterfront access, enticing beachcombers year round and sunbathers and picnickers during the summer. A large green space makes this a nice spot for a picnic as you watch the deep-sea ships entering Tacoma’s busy portal.
This home sits near the North Shore Public Golf Course featuring a fun, yet challenging, well-manicured 18-hole public course. Players of every level can enjoy golf at North Shore. The Greens Restaurant, perfect for a pre-or post-round meal, features a delightful menu of American fare.
Enjoy the local community center just a couple of miles away! The Center at Norpoint is a multi-purpose community center located in Northeast Tacoma. The facility features both recreational and community spaces and caters to all ages and ability levels. They have a pool, climbing wall, fitness, and wellness, and programs for all ages +, a skatepark, a splash pad, and park!
For more outdoor fun - Washington water fans, look no further! Bust out your kayak, sand bucket, swimsuit or fishing rod, and head straight for Dash Point State Park!
Not only can you look forward to being in this close-knit community, there are also dining and shopping options within close range. Just 3 miles east, you’ll find the Browns Point Diner - classic American food with hand-dipped milkshakes. Or step into The Sandbar, an extension of the diner and a happy hour lounge for some appetizers, drinks, and karaoke. In this same center, you can also find the Lighthouse Market for some light grocery shopping, North 47 Brewing Co., Hilltop Teriyaki Sushi & Pho, Coffee & Cream Cafe. 3 miles west, in the Northshore Village is ACE Hardware, Hong Kong market, Easy Espresso Coffee, Crystal Nails & Spa, Jersey’s Sports Bar, Foxy Cleaners, Pho Tasty, Flame Burgers, and Hitchin Post Saloon.
LISTING BROKER
Heidi Hurst
Realtor
253-232-5100










































