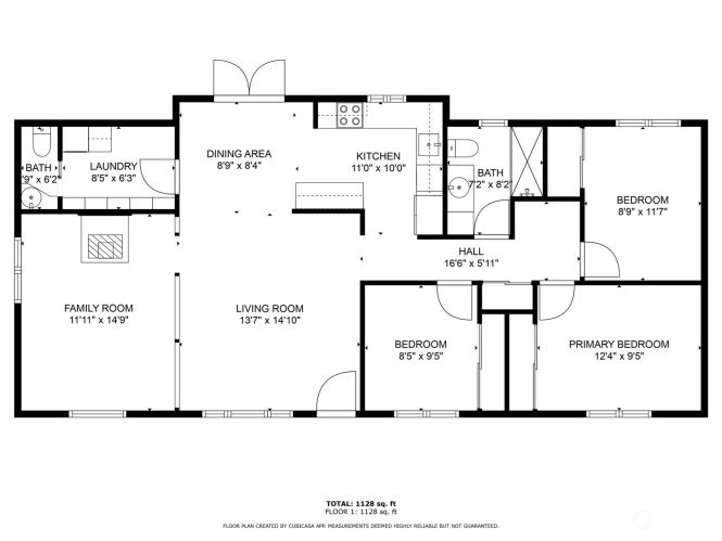
Tucked away in a quite pocket of Auburn this meticulously maintained 3 bed rambler is the one you've been waiting for! Offered to the market for the first time in over 60 years. You'll find a functional & fluent layout on the interior with all the space you'll need on the exterior. Fully fenced lot sitting on just shy of a quarter acre, shaded by trees & brush. Large 480 sqft detached shop with water, gas, electricity, & a wood burning fireplace (DADU?). An adjacent greenhouse with water & electricity run. Light & bright on the interior hosting two separate living spaces, a roomy kitchen flowing into the dining space, a half bath off the laundry, 3 well sized bedrooms, a full bath, and an abundance of storage all around. A must see!
706 24th Street SE
Auburn, WA
$489,500
$550,000
3 Bed
1½ Bath
1,160 Sq Ft
Listing by NWMLS / Rain Town Realty + JPAR

- Year Built 1959
- Lot Size 7,562 sq ft
- Parking Spaces 1
- Parking Type RV Parking, Detached Carport, Driveway, Detached Garage
- Lot Details Curbs, Paved
- View Territorial
- Exterior Features Wood
- Interior Features Ceramic Tile, Wall to Wall Carpet, Ceiling Fan(s), Double Pane/Storm Window, Dining Room, Fireplace, Water Heater
- Heating & Cooling Forced Air
- Floor Covering Ceramic Tile, See Remarks, Vinyl Plank, Carpet
- Annual Taxes $4,888 (2024)
- MLS Number 2262763
- Elementary School Pioneer Elem
- Junior High Olympic Mid
- Senior High Auburn Snr High
Click anywhere on the map to get approximate drive times.



























