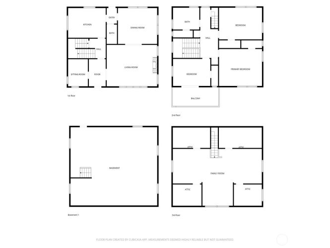
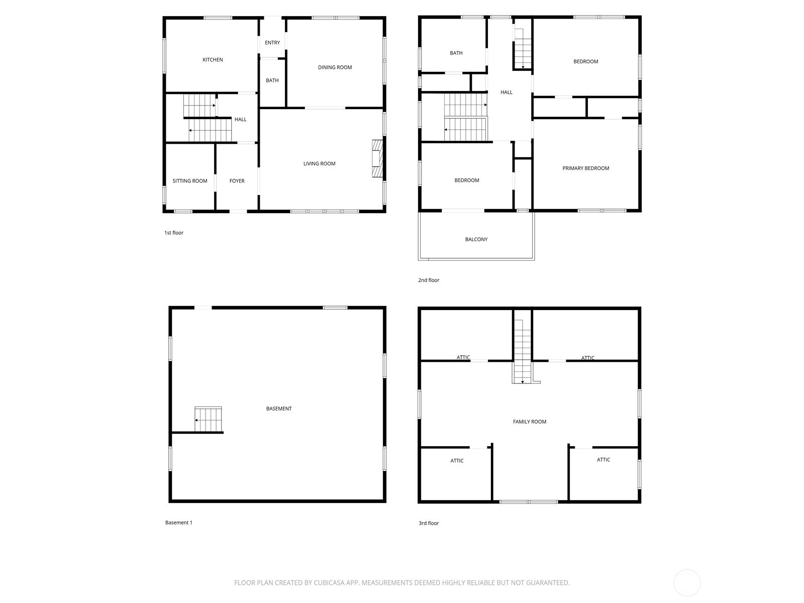
Discover the historic charm of this 1920 Craftsman, thoughtfully updated for modern living. Newly refinished oak floors, rich wood trim, and stately handcrafted pillars frame the welcoming entry, living room with built-in bookcases and fireplace, and formal dining room. A cozy den, three-quarter bath, and a kitchen remodeled for functionality complete the main floor. Upstairs are three bedrooms, a spacious full bath with walk-in closet, and a large, bright finished attic that offers versatility as a family room or fourth bedroom. The private backyard oasis boasts beautiful new landscaping and fencing, an expansive patio, hot tub, and outdoor fridge—perfect for entertaining in style. Recent upgrades include new roof and fresh exterior paint.
505 S Sheridan Avenue
Tacoma, WA
3 Bed
1¾ Bath
3,748 Sq Ft
Listing by NWMLS / Windermere Abode
- Year Built 1920
- Lot Size 6,499 sq ft
- Parking Spaces 1
- Parking Type Detached Garage, Off Street
- Style Craftsman
- Lot Details Alley, Curbs, Paved, Sidewalk
- View Territorial
- Exterior Features Wood
- Interior Features Ceiling Fan(s), Double Pane/Storm Window, Dining Room, Fireplace, French Doors, Security System, Walk-In Closet(s), Water Heater
- Heating & Cooling Forced Air, Heat Pump, Wall Unit(s), Forced Air, Heat Pump
- Floor Covering Ceramic Tile, Hardwood, Softwood, Vinyl Plank, Carpet
- Annual Taxes $7,401 (2025)
- MLS Number 2471360
Click anywhere on the map to get approximate drive times.









































