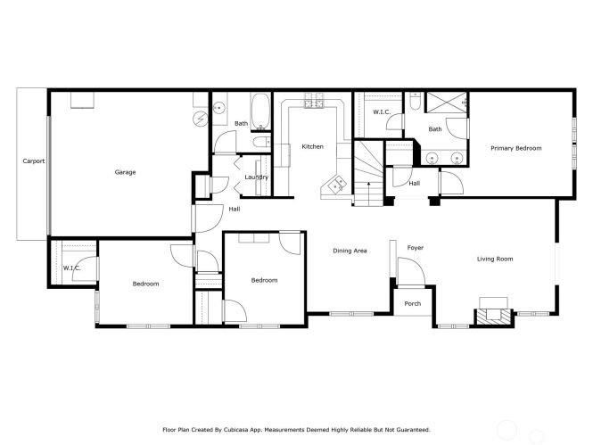
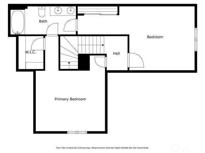
invoke cutoff A new roof, along with updates completed in 2025 make this home a turnkey opportunity for buyers seeking a home without immediate renovation and maintenance costs. The main level includes the primary suite, two additional bedrooms, a full guest bath, and all living spaces. Upstairs, two large bedrooms and a full bathroom provide easy options for a second primary suite and space for hobbies or guests. Enjoy a comfortable life with air conditioning, a gas fireplace, and a custom kitchen designed with function in mind. With Trader Joe’s less than 2 miles away, Tumwater Craft District 2 miles away, and Downtown Olympia 4 miles away, this home is close to everything. New roof in 2026. 2025 updates include new exterior paint, new carpet, new refrigerator, new gas range, new flooring in the primary bathroom. Incredible storage throughout with walk-in closets in 4 of 5 bedrooms, 3 storage closets on the main level, and a pull-down ladder in the finished garage that leads to attic storage. Home exteriors maintained by the HOA, so life is easier here.
3707 Simmons Heights Lane SW
Tumwater, WA
5 Bed
2¾ Bath
2,550 Sq Ft
Listing by NWMLS / Windermere Abode
- Year Built 2008
- Lot Size 5,606 sq ft
- Parking Type Individual Garage
- Lot Details Corner Lot, Curbs, Paved, Sidewalk
- View See Remarks, Territorial
- Exterior Features Cement Planked, Stone
- Interior Features Alarm System, End Unit, Fireplace, Ground Floor, Insulated Windows, Primary Bathroom, Skylight(s), Vaulted Ceilings, Walk-In Closet(s), Water Heater
- Heating & Cooling Forced Air, Heat Pump
- Floor Covering Ceramic Tile, Hardwood, Vinyl, Carpet
- Annual Taxes $7,054 (2025)
- MLS Number 2480176
Click anywhere on the map to get approximate drive times.





































