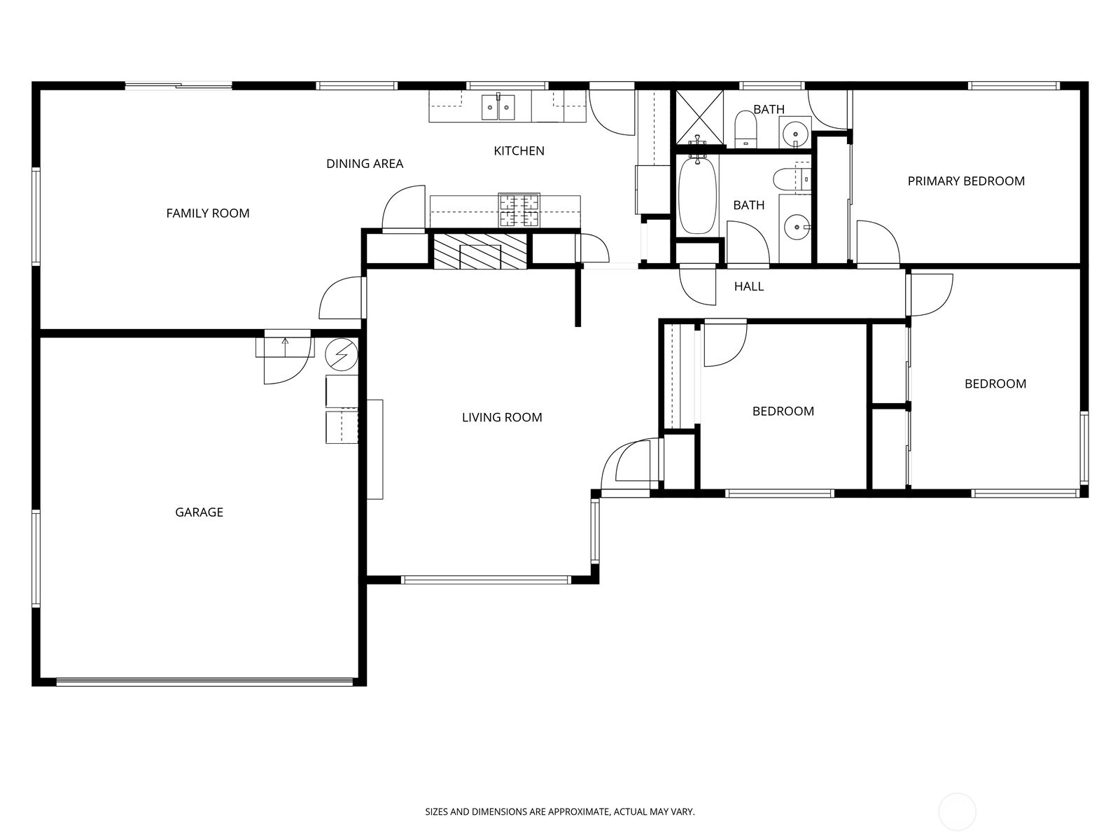
Tucked onto a spacious quarter acre lot in Lake Louise, this home offers a comfortable life just a few doors down from Fort Steilacoom park, close to multiple lakes, and within a 10-minute drive to JBLM. East/west exposure infuses the home with natural light, providing a sun-lit morning kitchen and a cozy afternoon living room. Hardwood flooring extends through most of the home with coordinating LVP in the kitchen and family room. The updated kitchen blends style and performance with cherry cabinets, quartz and butcher block counters, a dual fuel professional Kenmore range, and an above range pot filler. The hood vent and beverage fridge are brand new, and the Bosch refrigerator was installed in 2024. It’s the perfect spot for everyday living and entertaining. Step outside to enjoy the covered patio, mature landscaping, and old growth trees that create a sense of privacy and calm. The property also features an attached 2 car garage, ample driveway parking, and a small shop wired with 240v that’s ideal for hobbies or projects. Major systems updated within the past 3 years include a new roof, furnace, heat pump with air conditioning, crawl space insulation and vapor barrier, attic insulation, and a rebuilt chimney with a 10-year warranty.
Pending as of April 30, 2026
Lake Louise Rambler
10123 Superior Street SW · Lakewood, WA
3 Bed
1¾ Bath
1470 Sq Ft
Listing by NWMLS / Windermere Abode
- Year Built 1960
- Lot Size 11,252 sq ft
- Parking Spaces 2
- Parking Type Driveway, Attached Garage
- Lot Details Dead End Street, Paved
- View Territorial
- Exterior Features Brick, Wood
- Interior Features Dbl Pane/Storm Window, Fireplace, Water Heater, Wine/Beverage Refrigerator
- Heating & Cooling Forced Air, Heat Pump, High Efficiency (Unspecified), Forced Air, Heat Pump
- Floor Covering Ceramic Tile, Hardwood, Vinyl, Vinyl Plank
- Annual Taxes $5,214 (2026)
- HOA Dues $0
- MLS Number 2503323
- Elementary School Buyer To Verify
- Junior High Buyer To Verify
- Senior High Buyer To Verify
Click anywhere on the map to get approximate drive times.


