3 BEDROOM HOME IN NORTH TACOMA
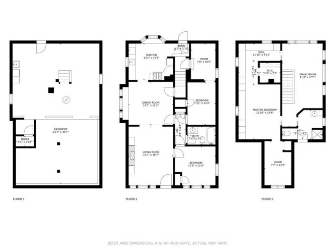
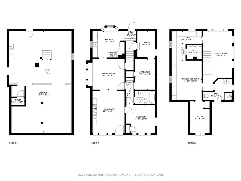
This 1917 Craftsman is the perfect place to call home. Upon entry, you’ll notice the natural light; large living and dining room are bathed in light, thanks to twin bay windows. Reimagined in the 80’s, you’ll find quality details throughout. Handmade kitchen cabinetry and a breakfast nook overlooking your private fenced yard and deck. 2 bedrooms on the main floor + office. Upstairs, a 2nd living room and primary suite lined with built-in storage and a walk-in closet. Don’t miss the secret time capsule - future craft room or 2nd office space. The walk-out basement has 8′ ceilings and is ready to house your tools and hobbies! Detached 1-car garage. Just 1/2 mile to Tacoma’s waterfront & Pt Ruston - host of year-round festivals and art events.
WHAT’S NEARBY
The ever developing Point Ruston is just minutes away down the hill and offers shopping & dining & entertainment! WildFin American Grill, Jewel Box Cafe, Farrelli’s Pizza, Stack 571, Ice Cream Social and live music in the summer! Enjoy the popular trail with grandiose views of Puget Sound and the Olympic Mountains with even better views at the top of the Dune Peninsula! 11 acres of landscaped park property on the breakwater peninsula surrounding the Tacoma Yacht Club and connecting to the Point Defiance Park via the Wilson Way Bridge. Be sure to stop by the chutes and ladders style slides for a fun time! The sunsets and views of Mount Rainier will leave you in awe. Just opened to the public - get out and support local businesses at the Public Market. 30,000 sq ft of indoor shopping and dining. Get baked goods, cheese, wine, seafood, chocolate, fresh canned goods, art and toys.
The Ruston Way Waterfront, Tacoma’s beloved waterfront boardwalk that includes playful seal sightings, majestic blue herons, and stunning views of Mount Rainier and moon rises on clear days/nights. Enjoy a cozy weekend brunch at the Lobster Shop - serving up lobster and other seafood dishes. Pick up a casual lunch from Northern Fish and grab a bit of fresh air at the Old Town Dock. Enjoy breathtaking views from the new benches of this restored historic dock, improved lighting, and those arriving by water now have access to two slips that can moor vessels up to 40-feet and 60-feet and low, free-board floats extending off the main dock to accommodate kayakers.
Check out the Unicorn Sports Bar for happy hour and local happenings.
Get the best takeout from La Racherita, a local food truck that the neighborhood loves. Fresh & full burritos, street tacos, breakfast plates, tortas, soups, birrias and more!
Explore the Mason Gulch - 36 contiguous open space acres located in North Tacoma. Steep, forested slopes surround the wetland/creek complex at the bottom elevations. This area provides many environmental benefits including storm water management, wildlife habitat, and water quality protection. There’s a few blackberry bushes to get through, but once you make it past that, you’re in for a pleasant walk. Enjoy moss covered basins, birds and the occasional deer.
LISTING BROKER
Jenny Wetzel
Realtor
253.381.9788
https://windermereabode.com/bi...











































