4 BEDROOM HOME IN AUBURN
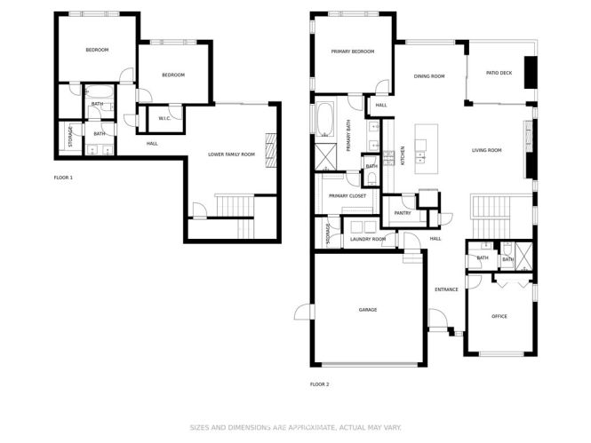
This gorgeous 1 story with daylight basement home in Vista Pointe lives like a rambler where all the main living can be done on one floor. A finished daylight basement with a family room, 2 bedrooms, and a full bathroom offers additional flexibility. Upgrades include AC, Graber blinds (including top/down & room darkening), stainless steel appliances, air purifier, travertine tile. Oversized picture windows provide lots of natural light & views. Stunning kitchen with huge island, granite countertops & large walk-in pantry. Through the 10’x8’ glass doors - entertain & enjoy views of the Cascades & Auburn Valley year-round from the covered back deck with a gas fireplace. Great location close to amenities with easy access to hwy 167, 18, and I-5.
WHAT’S NEARBY
The Outlet Collection is 5 miles away and is the largest outlet mall in the PNW. It features a unique mix of top-brand outlets like Nike, J. Crew, Bed Bath & Beyond, Ann Taylor, Banana Republic, Carter’s, Nordstrom Rack, and more!
Spend the afternoon in downtown Auburn for shopping and dining. You’ll find The Classic Farmhouse and Main Street Thrift for vintage and antique goods, a Little Knitty for all the yarn you could ever need, Gosanko Chocolate Factory, Sunbreak Cafe, Trotters - sports bar, Oddfellas, Vinifera Wine bar & Bistro, and more!
Gather with friends for a day at Emerald Downs - opening day is May 15th. They’ve got plenty of horse racing, but also offer Wiener dog races, corgi races, people in T-Rex costumes racing and more. There’s no shortage of entertainment!
Take advantage of being close to the Pacific Bonsai Museum - a collection that boasts over 100 bonsai trees from China, Japan, Canada, Korea, Taiwan & America. Make a day out of it by also visiting the Rhododendron Species Botanical Garden - a vast garden with a variety of rhododendrons & azaleas, plus seasonal & perennial plants & blossoms.
Nearby you’ll enjoy visiting 5 Mile Lake Park with basketball courts, tennis, lake, walking trails, BBQ grills with picnic tables.
LISTING BROKER
Maia Liloc Rice
Realtor
253.545.1650






































